Italiano
Prezzi da 497.720 €

PROSSIMA REALIZZAZIONE

Appartamento in vendita • Cernusco sul Naviglio (Via Adua) - Via Gemona
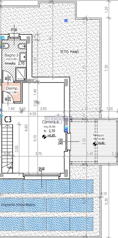
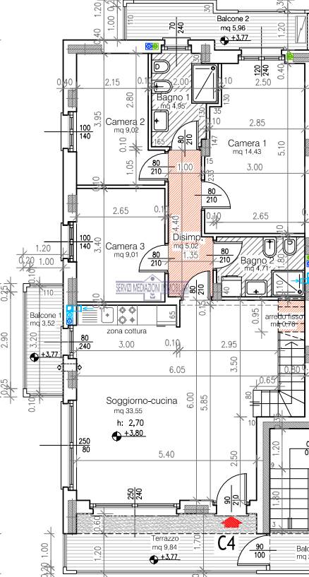
Cernusco sul Naviglio - Zona Via Adua - NUOVA REALIZZAZIONE: Proponiamo in vendita nuova mini-residenza di sole 4 unità immobiliari, tutte di ampia metratura, 4 e 5 locali con una cura nella distribuzione interna per garantire una giusta funzionalità e una corretta vivibilità. E' inoltre possibile personalizzare la suddivisione interna permettendo di adattare gli spazi alle proprie esigenze e desideri. Troverete Materiali e rifiniture di alto standard qualitativo attraverso l'impiego di energie rinnovabili con la finalità di raggiungere il miglior risparmio energetico e comfort abitativo.
Ideale per chi desidera tranquillità il piccolo condominio è composto da soli 4 appartamenti. La costruzione si sviluppa in un unico corpo di fabbrica di un solo piano fuori terra e un piano interrato destinato ad autorimesse, locale biciclette e cantine. Classe energetica di progetto: A3
N.B.: I prezzi riportati negli annunci sono esclusi di IVA e allacciamenti
Per visionare il progetto contattateci allo 02.92106020
Caratteristiche principali
Codice
AAV20251003
Città
Cernusco sul Naviglio (Via Adua)
Categoria
Appartamento
Prezzi da
497.720 €
Classe energetica
A3
Riscaldamento
Autonomo

Accessori: Cancello Elettrico, Doppi Vetri, Impianto Fotovoltaico, Passaggio Automobilistico, Porta Blindata, Video Citofono

Mappa
Via Gemona , Cernusco sul Naviglio (MI)
Condividi su
Cookie preference